Loading...

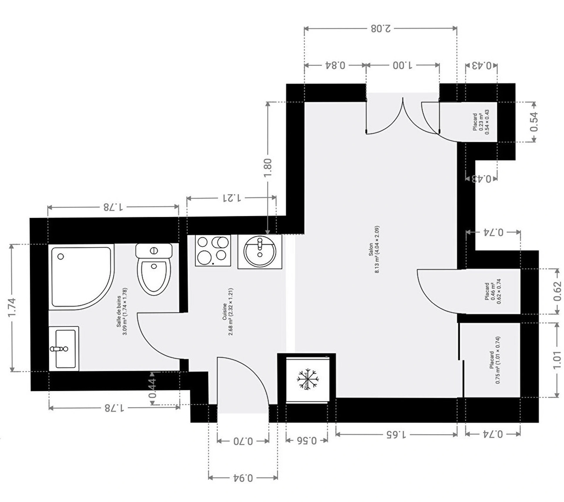
- Appartement Paris 1 pièce(s) 17.20 m2

169 000 €dont 6,29% TTC à la charge de l'acquéreur159 000 € hors honoraires
PARIS 20ème
1 pièce(s)
17m²
- Description du bien
Votre agence FREDELION Gambetta vous présente en exclusivité ce studio lumineux de 17 m².

Situé au 6e et dernier étage d'un immeuble ancien avec ascenseur et gardienne, ce bien offre une belle vue dégagée sur les toits de Paris et ses monuments, Tour Eiffel comprise. Il dispose de rangements optimisés.

Le chauffage est assuré par des radiateurs performants équipés de détecteurs d'ouverture, permettant confort et économies d'énergie. Un ballon d'eau chaude neuf complète les prestations. DPE D, rare pour ce type de bien.

Vous profiterez également d'un jardin commun au sein de la copropriété. Idéal pied-à-terre, premier achat ou investissement. Proche commerces et transports. A visiter sans tarder. (6.29 % honoraires TTC à la charge de l'acquéreur.)
Copropriété de 79 lots.

Charges annuelles : 676 euros.
Ce bien fait parti d'une co-propriété de 79 lots. Les charges sont de 676€ par an. Pas de procédure en cours.
DPE_ passoire énergétique logement extrêmement performant logement extrêmement peu performant consommation (énergie primaire) 315 kWh/m²/an émissions* 12 kgCO2/m²/an
DPE_ * Dont émissions de gaz à effet de serre peu d'émissions de CO2 émissions de CO2 très importantes 12 kgCO2/m²/an
- FREDéLION, c'est...
Chiffre
15
années
d'expertises
Chiffre
3313
avis clients
(MeilleursAgents, Google my business et Opinion System)
Chiffre
106
collaborateurs
à votre service
Votre agence
273 rue des Pyrénées, 75020 PARIS
01 40 33 30 00
Contactez-nous
Pour ce bien
*champs requis
Loading...
Les informations recueillies sur ce formulaire sont enregistrées dans un fichier informatisé par Fredélion Paris 20 Gambetta pour gérer votre demande de contact. Elles sont conservées pour la durée nécessaire à la gestion de la relation client dans le respect des prescriptions légales applicables et sont destinées au responsable de la publication de ce site : Fredélion Paris 20 Gambetta.
Conformément à la loi « informatique et libertés », vous pouvez exercer votre droit d'accès aux données vous concernant et les faire rectifier en contactant Fredélion Paris 20 Gambetta gambetta@fredelion.com ou en utilisant ce formulaire. Nous vous informons de l’existence de la liste d'opposition au démarchage téléphonique « Bloctel », sur laquelle vous pouvez vous inscrire ici : https://www.bloctel.gouv.fr/
FREDELION PARIS 20 GAMBETTA - ALEPH TRANSACTIONS SAS, société au capital de 33300.00 euros. Siège social : 28 bd Malesherbes 75008 PARIS. N° de TVA intracommunautaire : FR52882080054. RCS PARIS immatriculé(e) 882080054.
Carte T : CPI75012021000000432. Date de délivrance : 2002-01-11T15:57:07.000000Z. Lieu de délivrance : Paris - IDF. Caisse de garantie financière : CEGC. N° de caisse de garantie : 22906TRA201. Adresse de la caisse de garantie : 59 AVENUE Pierre Mendès France 75013 PARIS. Montant de la garantie financière : 839900 euros.
Conformément aux articles L611-1 et suivants et R612-1 et suivants du Code de la consommation, le consommateur est informé qu’il a la possibilité de saisir un ou notre médiateur de la consommation, à savoir situé
Barème d'honoraires